Projektdokumentationen
︎ Umbau Haus am Hang
︎ Umbau Fertighaus
︎ Minimalistische Küche
︎ Entwurf Einfamilienhaus
︎ Umbau Haus mit Schwimmbad
︎ Umbau Küche
︎ Umbau Doppelhaushälfte
︎ Sitzfenster
︎ Umbau Denkmalschutz
︎ Aufstockung
︎ Kinderschreibtisch
︎ Kernsanierung Gründerzeitwohnung
︎ Bett mit Schrank
︎ Kleine Küche
︎ Schemel-Serie
Projektliste
HAUS WAIBLINGER STRASSE
Einfamilienhaus, Kernen im Remstal, Baujahr 1960
Umbau und energetische Sanierung
Leistungsphasen 1-8
zur Zeit im Bau
HAUS VOGELSANGSTRASSE ︎ Umbau Haus am Hang
Mehrfamilienhaus, Stuttgart West, Bj. 1933
Umbau und Kernsanierung
Leistungsphasen 1-8
Fertigstellung 2025
HAUS KEIMENÄCKERSTRASSE
Reihenhaus, Gerlingen, Bj. 1959
Umbau und Kernsanierung, Dachausbau
Leistungsphasen 1-8
Fertigstellung 2025
HAUS GEHRENWALDSTRASSE
Mehrfamilienhaus, Stuttgart Untertürkheim, Bj. 1955
Umbau und energetische Sanierung
Leistungsphasen 1-4
Bauantrag 2024, genehmigt
KÜCHE PAULUSSTRASSE ︎ Minimalistische Küche
Küche, Stuttgart West, Bj. 1906
Innenausbau
Entwurf und Produktion
Fertigstellung 2023
HAUS FAHRNERSBERGER STRASSE
Wochenendhaus, Untergruppenbach, Bj. 1965
Nachträgliche Genehmigung eines Anbaus
Bauantrag 2023, Duldungsvereinbarung
HAUS HAGBERGSTRASSE
Doppelhaushälfte, Stuttgart Ost, Bj 1925
Nachträgliche Genehmigung eines Anbaus
Bauantrag 2023, nicht genehmigt
HAUS ERNST-MORITZ-ARNDT-STRASSE
Wohn- und Geschäftshaus, Ditzingen, Bj. 1953
Nutzungsänderung Gewerbe in Wohnen, Umbau
Konzept und Kostenschätzung 2023
HAUS BENZENGRABENSTRASSE
Wohnhaus mit Scheune, Köngen, Bj. 1909
Ausbau der Scheune, Umbau in ein Mehrgenerationenhaus
Konzept und Kostenschätzung 2023
HAUS EUGENSPLATZ
Reihenhaus, Stuttgart Mitte, Bj. 1955
Aufstockung der Garage mit Wohnraum
Bauvoranfrage 2023, positiv beschieden
HAUS DAIMLERSTRASSE
Wohn- und Geschäftshaus, Stuttgart Bad Cannstatt, Bj. 1906
Nutzungsänderung Gewerbe
Bauantrag 2023, genehmigt
HAUS FUCHSWALDSTRASSE
Mehrfamilienhaus, Stuttgart Kaltental, Bj. 1931 und 1982
Energetische Sanierung, Umbau und Erweiterung
Leistungsphasen 1-7
Fertigstellung 2023
HAUS ELSÄSSER STRASSE
Wohn- und Geschäftshaus, Stuttgart Zuffenhausen, Bj. 1893
Lückenschluss mit Aufstockung
Leistungsphasen 1-4
Bauantrag 2022, genehmigt
HAUS SEESTRASSE ︎ Umbau Fertighaus
Fertighaus, Grabenstetten, Bj. 1978
Energetische Sanierung, Um- und Anbau
Leistungsphasen 1-8
Fertigstellung 2022
HAUS TANNENWEG ︎ Entwurf Einfamilienhaus
Einfamilienhaus, Böblingen Perouse, Bj. 1978
Energetische Sanierung, Umbau und Erweiterung
Konzept und Kostenschätzung 2022
WOHNUNG ROSENBERGSTRASSE
Maisonette, Stuttgart West, Bj. 1895
Erweiterung
Leistungsphasen 1-4
Bauantrag 2021, genehmigt
HAUS HINDENBURGSTRASSE ︎ Umbau Haus mit Schwimmbad
Einfamilienhaus mit Schwimmbad, Korntal-Münchingen, Bj. 1933, 1974 und 1985
Kernsanierung und Umbau zum Mehrfamilienhaus
Leistungsphasen 1-8
Fertigstellung 2021
HAUS HONOLDWEG
Stellplatz mit Gartenhaus am Hang, Stuttgart West
Neubau
Leistungsphasen 1-6, nicht ausgeführt
Bauantrag 2021, genehmigt
KÜCHE HONOLDWEG ︎ Umbau Küche
Küchenregal Lärche, Stuttgart West
Fertigstellung 2021
TREPPENANLAGE HOCHFIRSTSTRASSE
Treppenaufgang zum Haus am Hang, Stuttgart Vaihingen, Bj. 1954 und 1982
Überdachung und Sanierung bestehender Treppenanlage
Konzept und Entwurf 2021
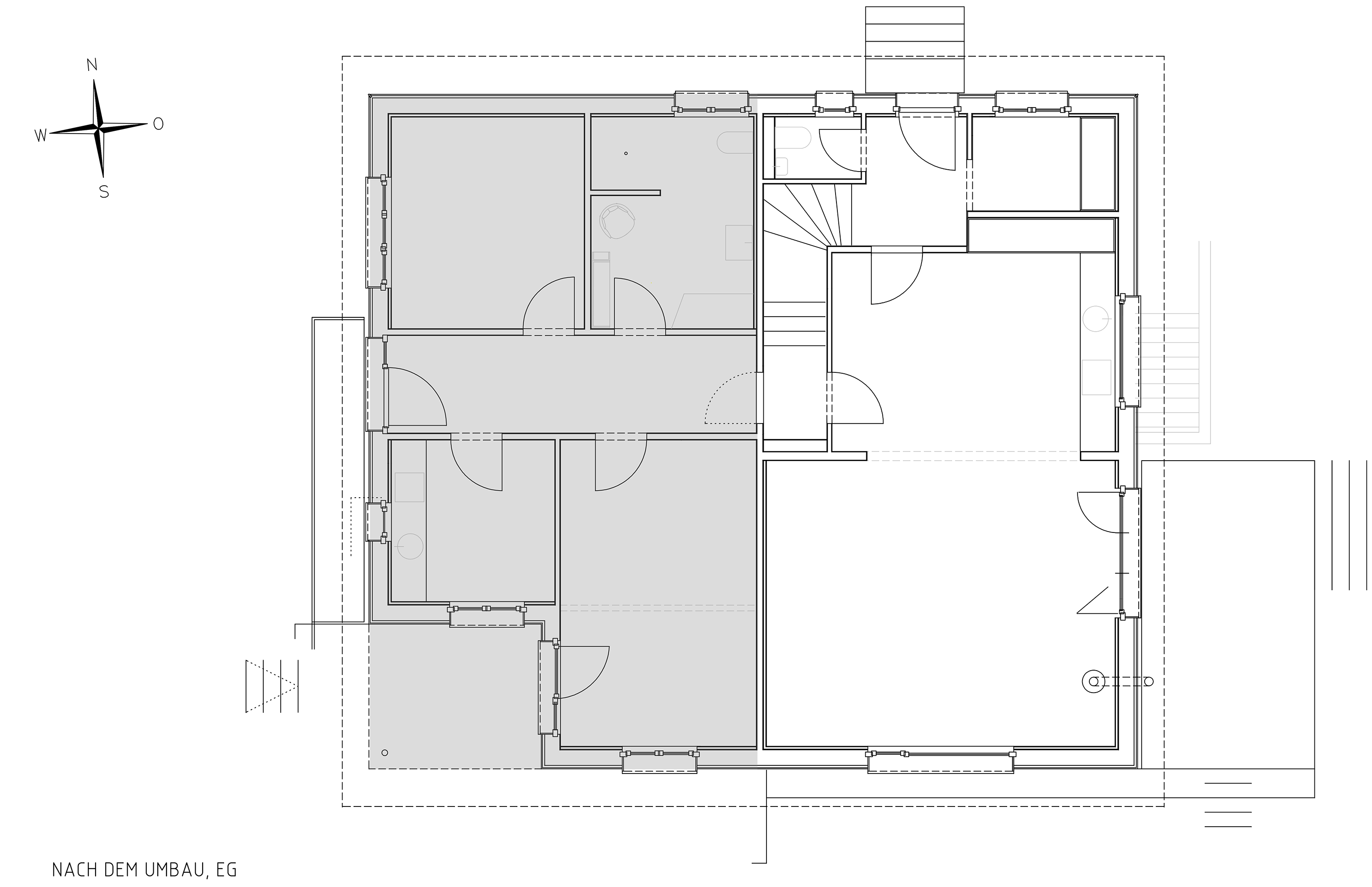
HAUS IM STEINENGARTEN ︎ Umbau Doppelhaushälfte
Doppelhaushälfte, Stuttgart Vaihingen, Bj. 1978
Kernsanierung, Umbau, Dachausbau
Leistungsphasen 1-8
Fertigstellung 2020
BADEZIMMER IM STEINENGARTEN
Badmöbelfamilie Ahorn, Stuttgart Vaihingen
SITZFENSTER IN DEN AUEN ︎ Sitzfenster
Doppelhaushälfte, Waiblingen Beinstein, Bj. 2014
Einbau eines Sitzfensters
Leistungsphasen 1-8
Fertigstellung 2020
WOHNUNG ELISABETHENSTRASSE ︎ Umbau Denkmalschutz
Eigentumswohnung, Stuttgart West, Bj. 1909
Umbau Denkmalschutz
Leistungsphasen 1-4
Fertigstellung 2020
MAISONETTE MAINSTRASSE ︎ Aufstockung
Eigentumswohnung, Stuttgart Münster, Bj. 1911
Aufstockung
Leistungsphase 8
Fertigstellung 2019
WOHNPROJEKT KESSELHOF
Gemeinschaftsküche für ein Wohnprojekt nach dem Modell des Mietshäuser Syndikats, Stuttgart Botnang, Bj. 2019
Innenausbau, Küchenbau
Entwurf und Produktion
Fertigstellung 2019
HAUS KEUPERWEG
Einfamilienhaus, Gerlingen, Bj. 1964
KINDERSCHREIBTISCH ︎ Kinderschreibtisch
Schreibtisch für ein Schulkind, Stuttgart West
Möbelbau
Entwurf und Produktion
Fertigstellung 2018
WOHNUNG OBERE BISMARCKSTRASSE ︎ Kernsanierung Gründerzeitwohnung
Eigentumswohnung, Stuttgart West, Bj. 1911
Fertigstellung 2018
KINDERBETT KÖLLESTRASSE ︎ Bett mit Schrank
Einbaumöbel für eine Wohnung, Stuttgart West
Fertigstellung 2017
KÜCHE BISMARCKSTRASSE ︎ Kleine Küche
Einbauküche für eine Wohnung, Stuttgart West
Fertigstellung 2016
SCHEMEL-SERIE
Kinderschemel
Möbelbau
Entwurf und Produktion
2013-17
HAUS WAIBLINGER STRASSE
Einfamilienhaus, Kernen im Remstal, Baujahr 1960
Umbau und energetische Sanierung
Leistungsphasen 1-8zur Zeit im Bau
HAUS VOGELSANGSTRASSE ︎ Umbau Haus am Hang
Mehrfamilienhaus, Stuttgart West, Bj. 1933
Umbau und Kernsanierung
Leistungsphasen 1-8Fertigstellung 2025
HAUS KEIMENÄCKERSTRASSE
Reihenhaus, Gerlingen, Bj. 1959
Umbau und Kernsanierung, Dachausbau
Leistungsphasen 1-8Fertigstellung 2025
HAUS GEHRENWALDSTRASSE
Mehrfamilienhaus, Stuttgart Untertürkheim, Bj. 1955
Umbau und energetische Sanierung
Leistungsphasen 1-4Bauantrag 2024, genehmigt
KÜCHE PAULUSSTRASSE ︎ Minimalistische Küche
Küche, Stuttgart West, Bj. 1906
Innenausbau
Entwurf und ProduktionFertigstellung 2023
HAUS FAHRNERSBERGER STRASSE
Wochenendhaus, Untergruppenbach, Bj. 1965
Nachträgliche Genehmigung eines Anbaus
Bauantrag 2023, DuldungsvereinbarungHAUS HAGBERGSTRASSE
Doppelhaushälfte, Stuttgart Ost, Bj 1925
Nachträgliche Genehmigung eines Anbaus
Bauantrag 2023, nicht genehmigtHAUS ERNST-MORITZ-ARNDT-STRASSE
Wohn- und Geschäftshaus, Ditzingen, Bj. 1953
Nutzungsänderung Gewerbe in Wohnen, Umbau
Konzept und Kostenschätzung 2023HAUS BENZENGRABENSTRASSE
Wohnhaus mit Scheune, Köngen, Bj. 1909
Ausbau der Scheune, Umbau in ein Mehrgenerationenhaus
Konzept und Kostenschätzung 2023
HAUS EUGENSPLATZ
Reihenhaus, Stuttgart Mitte, Bj. 1955
Aufstockung der Garage mit Wohnraum
Bauvoranfrage 2023, positiv beschiedenHAUS DAIMLERSTRASSE
Wohn- und Geschäftshaus, Stuttgart Bad Cannstatt, Bj. 1906
Nutzungsänderung Gewerbe
Bauantrag 2023, genehmigtHAUS FUCHSWALDSTRASSE
Mehrfamilienhaus, Stuttgart Kaltental, Bj. 1931 und 1982
Energetische Sanierung, Umbau und Erweiterung
Leistungsphasen 1-7Fertigstellung 2023
HAUS ELSÄSSER STRASSE
Wohn- und Geschäftshaus, Stuttgart Zuffenhausen, Bj. 1893
Lückenschluss mit Aufstockung
Leistungsphasen 1-4Bauantrag 2022, genehmigt
HAUS SEESTRASSE ︎ Umbau Fertighaus
Fertighaus, Grabenstetten, Bj. 1978
Energetische Sanierung, Um- und Anbau
Leistungsphasen 1-8 Fertigstellung 2022
HAUS TANNENWEG ︎ Entwurf Einfamilienhaus
Einfamilienhaus, Böblingen Perouse, Bj. 1978
Energetische Sanierung, Umbau und Erweiterung
Konzept und Kostenschätzung 2022WOHNUNG ROSENBERGSTRASSE
Maisonette, Stuttgart West, Bj. 1895
Erweiterung
Leistungsphasen 1-4Bauantrag 2021, genehmigt
HAUS HINDENBURGSTRASSE ︎ Umbau Haus mit Schwimmbad
Einfamilienhaus mit Schwimmbad, Korntal-Münchingen, Bj. 1933, 1974 und 1985
Kernsanierung und Umbau zum Mehrfamilienhaus
Leistungsphasen 1-8 Fertigstellung 2021
HAUS HONOLDWEG
Stellplatz mit Gartenhaus am Hang, Stuttgart West
Neubau
Leistungsphasen 1-6, nicht ausgeführtBauantrag 2021, genehmigt
KÜCHE HONOLDWEG ︎ Umbau Küche
Küchenregal Lärche, Stuttgart West
Innenausbau
Entwurf und ProduktionFertigstellung 2021
TREPPENANLAGE HOCHFIRSTSTRASSE
Treppenaufgang zum Haus am Hang, Stuttgart Vaihingen, Bj. 1954 und 1982
Überdachung und Sanierung bestehender Treppenanlage
Konzept und Entwurf 2021HAUS IM STEINENGARTEN ︎ Umbau Doppelhaushälfte
Doppelhaushälfte, Stuttgart Vaihingen, Bj. 1978
Kernsanierung, Umbau, Dachausbau
Leistungsphasen 1-8 Fertigstellung 2020
BADEZIMMER IM STEINENGARTEN
Badmöbelfamilie Ahorn, Stuttgart Vaihingen
Innenausbau
Fertigstellung 2020SITZFENSTER IN DEN AUEN ︎ Sitzfenster
Doppelhaushälfte, Waiblingen Beinstein, Bj. 2014
Einbau eines Sitzfensters
Leistungsphasen 1-8 Fertigstellung 2020
WOHNUNG ELISABETHENSTRASSE ︎ Umbau Denkmalschutz
Eigentumswohnung, Stuttgart West, Bj. 1909
Umbau Denkmalschutz
Leistungsphasen 1-4
Fertigstellung 2020
MAISONETTE MAINSTRASSE ︎ Aufstockung
Eigentumswohnung, Stuttgart Münster, Bj. 1911
Aufstockung
Leistungsphase 8 Fertigstellung 2019
WOHNPROJEKT KESSELHOF
Gemeinschaftsküche für ein Wohnprojekt nach dem Modell des Mietshäuser Syndikats, Stuttgart Botnang, Bj. 2019
Innenausbau, Küchenbau
Entwurf und ProduktionFertigstellung 2019
HAUS KEUPERWEG
Einfamilienhaus, Gerlingen, Bj. 1964
Energetische Sanierung und Umbau
Konzept und Kostenschätzung 2019KINDERSCHREIBTISCH ︎ Kinderschreibtisch
Schreibtisch für ein Schulkind, Stuttgart West
Möbelbau
Entwurf und ProduktionFertigstellung 2018
WOHNUNG OBERE BISMARCKSTRASSE ︎ Kernsanierung Gründerzeitwohnung
Eigentumswohnung, Stuttgart West, Bj. 1911
Kernsanierung, Umbau
Leistungsphasen 1-8Fertigstellung 2018
KINDERBETT KÖLLESTRASSE ︎ Bett mit Schrank
Einbaumöbel für eine Wohnung, Stuttgart West
Innenausbau, Möbelbau
Entwurf und ProduktionFertigstellung 2017
KÜCHE BISMARCKSTRASSE ︎ Kleine Küche
Einbauküche für eine Wohnung, Stuttgart West
Innenausbau, Küchenbau
Entwurf und ProduktionFertigstellung 2016
SCHEMEL-SERIE
Kinderschemel
Möbelbau
Entwurf und Produktion2013-17